《钢桶制造技术》
杨文亮 辛巧娟 编著

第二章 钢桶的结构尺寸及特点
第五节 柱锥形钢桶的结构尺寸及性能要求
一、柱锥形钢桶的特点
柱锥形钢桶是欧洲标准的钢桶,是国外发达国家用于出口货物包装的流行钢桶类型。与我国200升直开口钢桶的区别在于桶身有锥度,钢桶尺寸也不相同。两种桶从技术和使用先进性上看差别较大,与国家标准钢桶相比,国外锥形桶具有如下优点:
(1)空桶可以套装堆码,节省空间和运输费用;
(2)钢桶尺寸符合国际运输标准,节省集装箱空间,运输成本低;
(3)内装货物装卸较为方便,易实现反复多次使用。
二、柱锥形钢桶的形状和尺寸
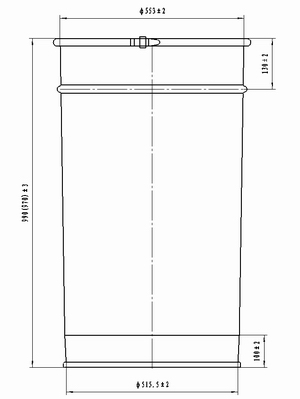
目前柱锥形钢桶主要有200升、215升和230升三种,属于开口桶,此桶采用0.8mm厚的冷轧薄钢板为原料,桶体为锥形,桶身上端内径为553mm,下端内径为516mm,桶高分别为940mm(200L)、970mm(215L)、990mm(230L)。桶身、桶底卷封采用二重平卷边。桶上盖为全开口型式,用环箍式封闭器封闭,钢桶内外涂装。在离桶口上端90毫米的桶身上有一环箍,下端离桶底100毫米的桶身锥度增大,便于空桶装码运输。桶底有四道环形筋和六道径向筋,并有24个4mm的圆孔,有利于装货时内衬袋与桶壁间的排气。此产品为单一品种,各项性能指标均按有关标准生产,并符合用户的要求。该产品适用于盛装食品果酱、番茄酱及固态和半固态化工产品等,使用时,一般在桶内衬有无菌塑料袋。结构尺寸如图2-9所示。

图2-9 柱锥形钢桶的结构尺寸
三、柱锥形钢桶的性能要求
柱锥形钢桶的产品的性能要求如下:
(1)跌落试验:跌落高度为1.2m,跌落后桶底卷封处不开裂。
(2)堆码试验:陆运为3m(或静载荷为524kg);海运为8m(或静载荷1444kg)。如采用集装箱或在甲板上运输,堆码的高度为3m。持续时间为24h,经检验钢桶不出现可能降低其强度或引起堆码不稳定的任何变形和严重破损。
(3)钢桶的漆膜附着力不低于GB1727规定的2级。
【返回目录】